您现在的位置: 小妲己直播app>小妲己直播app公告 >询价招标
发布时间:2024-11-20来源:编辑:浏览: 次
科室名称 | 项目名称 | 计量单位 | 数量 | 预算单价(万元) | 预算总价(万元) |
药物临床试验机构 | 分体空调 | 套 | 1 | 1.6 | 1.6 |
报名资料:
一、符合资质的单位持以下有效文件报名,所有资质均需加盖公章:
1.代理商企业营业执照
2.生产商营业执照
3.代理人授权书(含个人授权书)等有关证件。
4.属于医疗器械的产品,报名人提供整个授权链条的医疗器械经营许可证/备案,以及生产商营业执照、医疗器械生产许可证;同一品牌授权多家代理商的则报名无效或视同一家。
二、调研资料清单
1. 医疗设备情况调研表(点击下载)
2. 医疗设备参数及配置清单
3. 销售记录:三家以上三甲医院销售发票、中标通知书或合同复印件
三、资料提交
电子版文件发送至邮箱:zsyygxyyyxgcb@163.com(以报名公司+挂网日期+科室名称+项目名称命名),报名公司需扫描2024年设备挂网报名二维码填写相应信息(点击下载),不提供相关资料视为无效报名。
联系方式:住院部5楼医学工程部维修室2 0771-5722390
四、报名时间:2024年11月20日至2024年11月25日
报名截止时间:2024年11月25日18:00
(仅供参考,具体参数以科室实际需求为准)
分体空调
一、参数需求情况
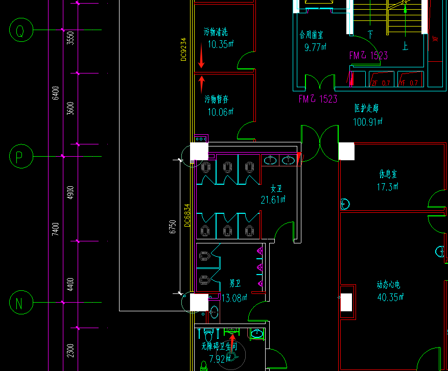
伦理资料室面积:7.92m2
GCP药房面积:10.06m2
GCP资料室面积:10.35m2
二、质保期≥3年
三、改造需求
药学部GCP办公室空调改造,分别为图上无障碍卫生间、污物暂存间、污物清洗间。该位置位于医院西侧,要求室内温度:15-25℃,湿度:35-65%。空调外机可放置于无障碍卫生间室外,院方负责布拉外机电源,室内已设有有排水孔。
四、附件:分体空调安装示意图(点击查看)
序号 | 项目 | 型号/规格 | 单位 | 数量 | 备注 |
1 | 变频挂机1 | 制冷量≥3500W, 功率≥1150W | 套 | ≥2 | 一级能效 |
2 | 变频挂机2 | 制冷量≥2500W, 功率≥750W | 套 | ≥1 | 一级能效 |
3 | 铜管1 | ≥6#10#.4*1.5线 | 米 | ≥16 | |
4 | 铜管2 | ≥6#/10#.4*1线 | 米 | ≥38 | |
5 | 铁架1 | ≥3*3 | 副 | ≥1 | 根据现场焊接 |
6 | 铁架2 | ≥3*3 | 副 | ≥2 | 根据现场焊接 |
7 | 排水管 | ≥2.5PVC管 | 米 | ≥8 | |
8 | 打孔 | ≥#60 | 个 | ≥8 |
返回顶部